Skip to main content

Trace C

$269

Trace C

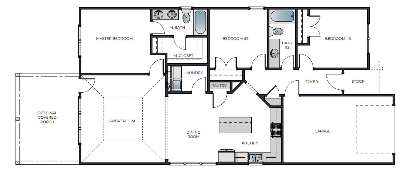
The front entry opens into a defined foyer with Bedroom 3 and Bath 2 positioned nearby. This layout gives the Trace C a practical entry sequence before the home transitions into the main living areas. The kitchen, dining room, and great room connect through the center of the home for easy everyday flow. The kitchen features an island that adds prep space, storage, and a natural connection to the dining area, while the pantry and laundry room keep daily function close at hand. The primary bedroom is tucked toward the rear of the home with its own bath and closet space, creating separation from the front entry and secondary bedrooms. Bedroom 2 sits near the center of the layout with convenient access to Bath 2, adding flexible space for guests, work, hobbies, or storage. The garage is a strong advantage for this single-level plan, adding covered parking and storage potential. With 3 bedrooms, 2 bathrooms, a kitchen island, pantry, laundry room, stoop, optional covered porch, and garage, the Trace C offers efficient new construction living with practical flow throughout.
*Elevations may vary per the community architectural plans. Options, room sizes, and porch configurations may vary per plan and/or community and are subject to change. Please contact our Sales Team for more details.

Floor Plans

Floor Plan 1
× Floor Plan Fullscreen

Leave a Reply