Skip to main content
$269

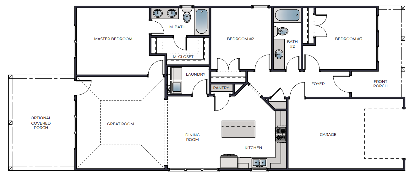
Trace B

From the front porch, the Trace B opens into a defined foyer with Bedroom 3 and Bath 2 positioned near the entry. This front-bedroom placement creates useful separation before the home transitions into the main living areas. The kitchen, dining room, and great room connect through the center of the home for easy everyday flow. The kitchen features an island that adds prep space, storage, and a natural connection to the dining area, while the pantry and nearby laundry room keep daily function close at hand. The primary bedroom is positioned toward the rear of the home with its own bath and closet space, creating privacy from the front bedrooms and main entry. Bedroom 2 sits nearby with convenient access to Bath 2, adding flexible space for guests, work, hobbies, or storage. With 3 bedrooms, 2 bathrooms, a kitchen island, pantry, laundry room, front porch, optional covered porch, and garage, the Trace B offers efficient new construction living in a single-level layout with practical flow from front to back.
*Elevations may vary per the community architectural plans. Options, room sizes, and porch configurations may vary per plan and/or community and are subject to change. Please contact our Sales Team for more details.

Floor Plans

Floor Plan 1
× Floor Plan Fullscreen

Leave a Reply