Skip to main content

Holly B

$580,622

Holly B

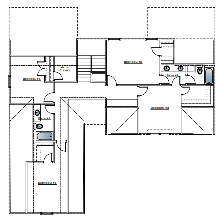
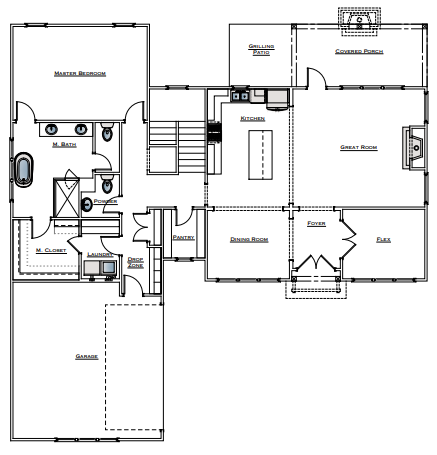
Are you looking for the perfect home to grow with capabilities of effortless entertaining? Look no further. The Holly, 5 bedroom, 3 and a half bathroom, 3,216 square foot home offers a thoughtfully designed two-story layout that blends everyday functionality with elegant living spaces. The first floor features a private primary suite tucked away for a quiet retreat, complete with a spacious ensuite bath, walk-in closet, and convenient access to the laundry room and drop zone. The heart of the home showcases an open-concept kitchen, dining, and great room, anchored by a large island and walk-in pantry—ideal for hosting and daily living alike. A welcoming foyer leads to a flexible front flex room, perfect for a home office, playroom, or formal sitting area. Enjoy seamless indoor-outdoor living with a covered back porch, creating the perfect space for relaxing or entertaining year-round. Upstairs, you’ll find four generously sized bedrooms, thoughtfully arranged for privacy and comfort, along with two full bathrooms and a centrally located homework/tech center—perfect for studying, remote work, or creative projects. The layout provides both shared and private spaces, giving everyone room to spread out while staying connected. With smart flow, ample storage, and versatile living areas, the Holly is designed to grow with your lifestyle—offering comfort, style, and functionality in every square foot.
*Elevations may vary per the community architectural plans. Options, room sizes, and porch configurations may vary per plan and/or community and are subject to change. Please contact our Sales Team for more details.

Floor Plans

Floor Plan 1
Floor Plan 2
× Floor Plan Fullscreen

Leave a Reply