Skip to main content
$550,622

Henry B

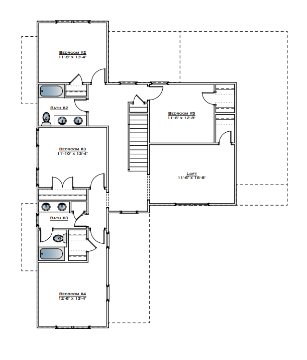
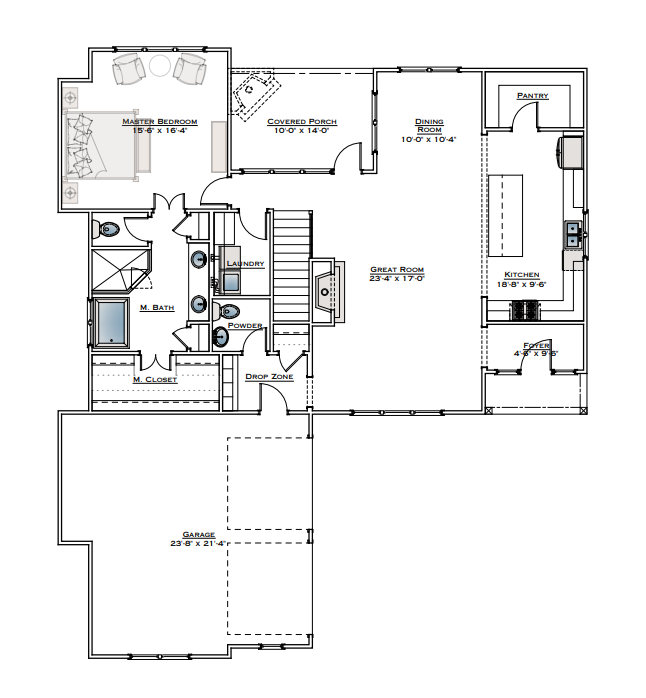
The Henry is a 5 bedroom, three and a half bathroom, 3,015 square foot home. This spacious 2-story home features an open great room with fireplace, large dining area, and a chef’s kitchen with oversized island and walk-in pantry. The main-level primary suite offers a luxurious bath with soaking tub, separate shower, dual vanities, and a generous walk-in closet. A covered porch extends the living space outdoors, with an optional outdoor fireplace available. Additional conveniences include a dedicated laundry room, powder bath, and a functional drop zone off the garage. Upstairs includes four additional bedrooms, three full baths, and a large loft perfect for a second living area, playroom, or media space. Well-designed with multiple ensuite-style bedroom setups and thoughtful storage throughout, this floorplan blends comfort, flexibility, and modern living for today’s families
*Elevations may vary per the community architectural plans. Options, room sizes, and porch configurations may vary per plan and/or community and are subject to change. Please contact our Sales Team for more details.

Floor Plans

Floor Plan 1
Floor Plan 2
× Floor Plan Fullscreen

Leave a Reply