Skip to main content
$525,622

Hayes A

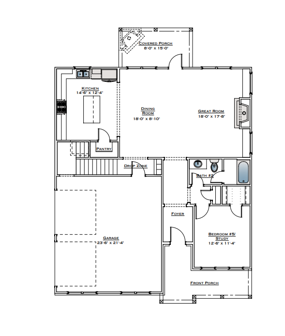
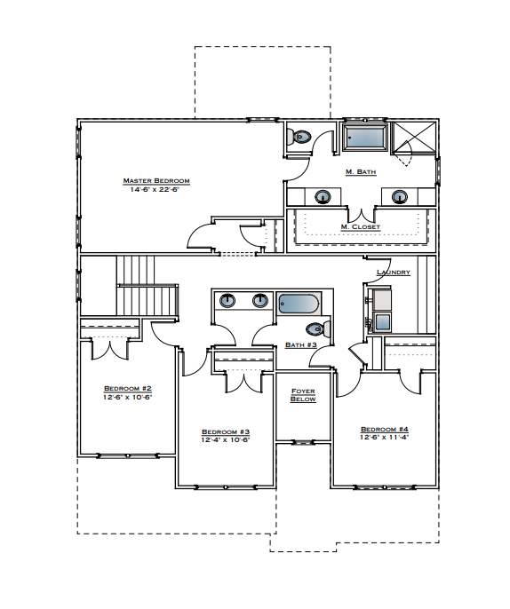
The Hayes is 2,739 square foot, 5 bedroom, 3 bathroom, beautifully designed 2-story home, offers an open and functional layout with spacious living areas and thoughtful details throughout. The main floor features a large great room with fireplace, an open dining area, and a chef’s kitchen complete with oversized island and walk-in pantry. A covered porch expands the living space outdoors, with an optional outdoor fireplace available. A convenient drop zone, full bath, and a flexible bedroom or study on the main level add everyday comfort and versatility. Upstairs, the expansive (HUGE) primary suite includes dual vanities, a soaking tub, tile walk-in shower, and a generous walk-in closet. Three additional bedrooms share access to two full baths, including a double-vanity jack-and-jill. A dedicated laundry room is centrally located for convenience. Blending open living spaces with private retreats, this floorplan offers modern comfort, smart design, and room for the whole family.
*Elevations may vary per the community architectural plans. Options, room sizes, and porch configurations may vary per plan and/or community and are subject to change. Please contact our Sales Team for more details.

Floor Plans

Floor Plan 1
Floor Plan 2
× Floor Plan Fullscreen

Leave a Reply