6.65%
Skip to main content
$662,420

The Preserve Lot 603 — Julia B with Detached Garage

Estimated payment: Mortgage Calculator
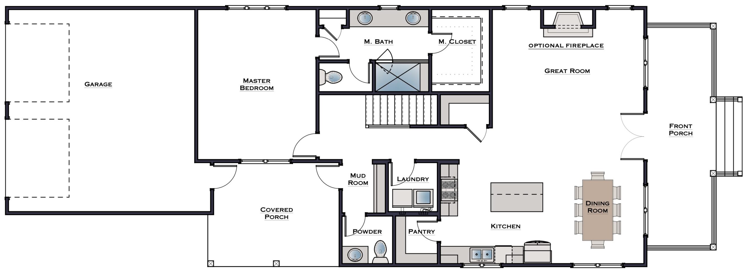
Welcome to The Julia Plan! The Julia is a three bedroom, two and a half bathroom home that spans across 2,308 square feet. As you enter into the home, you will make your way into the open concept great room and dining room. The dining room flows into the open concept kitchen, perfect for entertaining. As you make your way through the home, you will find the laundry room, powder bathroom and mudroom that leads to the back porch. The primary suite rests on the back of the home and features a spacious bedroom, en-suite primary bathroom with double vanities, a walk-in tile shower and a walk-in closet. As you make your way upstairs, you will find the two guest bedrooms, full bathroom, loft area and flex room. The home features a two car garage.

Floor Plans

Floor Plan 1
× Floor Plan Fullscreen

*All marketing materials including but not limited to individual lot renderings, community interactive maps, marketing floor plans and virtual tours are graphic illustrations for marketing and presentation purposes only. Actual floor plans, homesites, and materials may vary.

Virtual Tour

This interactive tour allows you to walk through each Holland Homes floor plan without having to leave the comfort of your own home! Simply click on the arrow that leads to the room you would like to view. You can also visit different areas of the home by selecting a desired location on the floor plan..
  • Use the arrows to move from room to room.
  • Use the cursor to look around the room.
  • Use the thumbnails to view different areas of the house.
$

10%

0.5%

6.65%

$1421

Monthly Payment

Principal & Interest $1421

Monthly Taxes $1421

Leave a Reply