6.65%
Skip to main content
$677,442

The Preserve Lot 602 — Bienville B with Detached Garage

Estimated payment: Mortgage Calculator
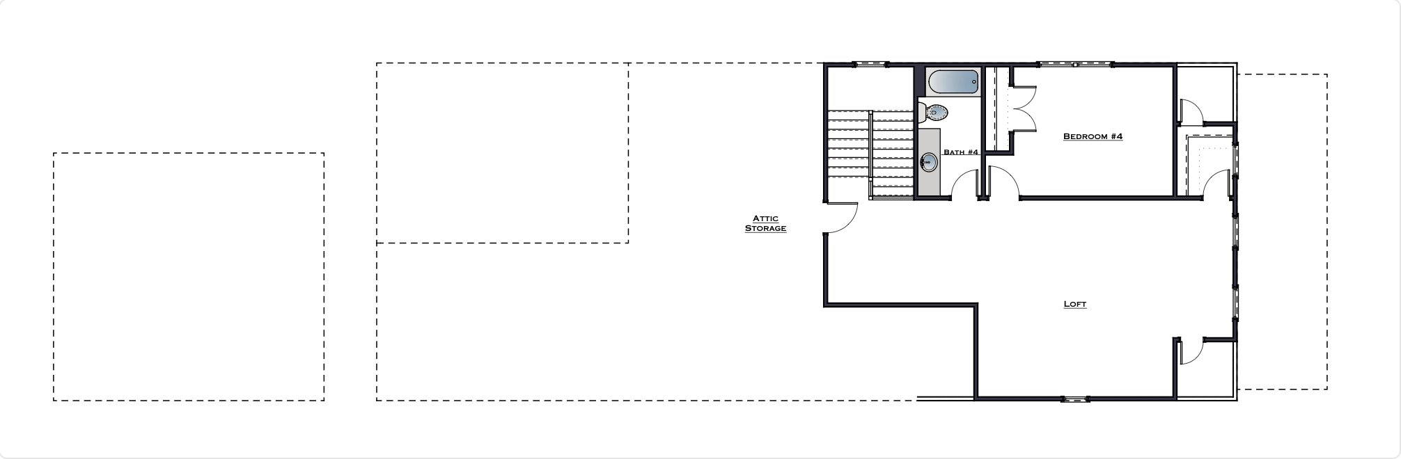
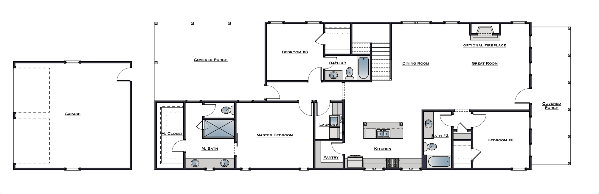
Welcome to The Bienville Plan! The Bienville features four bedrooms, four bathrooms and spans across 2,874 square feet. As you make your way into the home, you enter into the great room that features tall ceilings and large windows that allow for natural light to shine into the home. The great room flows into the dining area, and off the back of the great room is a guest bedroom and bathroom. As you enter into the kitchen, you will notice the large center island, custom cabinetry and walk-in pantry. Off of the kitchen is the laundry room and access to the second bedroom and bathroom. The primary bathroom is located on the back of the home, and features a large en-suite bathroom with double vanity sinks, a walk-in tile shower and a spacious walk in closet. Off the back of the home is a large covered porch and two car garage. The second level includes a fourth bedroom, fourth bathroom, loft area.

Floor Plans

Floor Plan 1
Floor Plan 2
× Floor Plan Fullscreen

*All marketing materials including but not limited to individual lot renderings, community interactive maps, marketing floor plans and virtual tours are graphic illustrations for marketing and presentation purposes only. Actual floor plans, homesites, and materials may vary.

Welcome Home

Envisioning what your future home will look like should be simple! This video showcases a Holland Homes floor plan that is available to be built. Through the use of video and virtual models, we provide the resources to not just dream of your next home, but make your dreams a reality. *The covered back porch shown in some of our home renderings is a structural option and is not always included in the base price of the home. Please speak to one of our sales team members for details.

Virtual Tour

This interactive tour allows you to walk through each Holland Homes floor plan without having to leave the comfort of your own home! Simply click on the arrow that leads to the room you would like to view. You can also visit different areas of the home by selecting a desired location on the floor plan..
  • Use the arrows to move from room to room.
  • Use the cursor to look around the room.
  • Use the thumbnails to view different areas of the house.
$

10%

0.5%

6.65%

$1421

Monthly Payment

Principal & Interest $1421

Monthly Taxes $1421

Leave a Reply