6.67%
Skip to main content
$566,685

The Preserve Lot 583 — Townhome 583 with Garage

Estimated payment: Mortgage Calculator
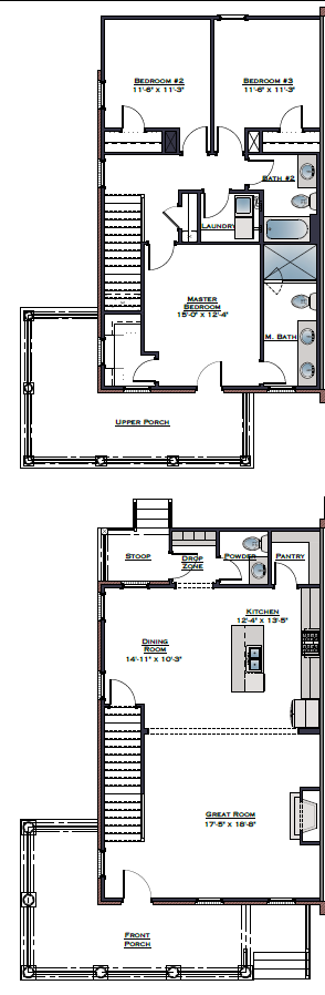
Townhome 583 begins at the front porch, where the entry opens into a great room that keeps the main level simple and easy to navigate. The living area connects naturally with the dining room and kitchen, giving the first floor a clear sense of flow without overcomplicating the layout. The kitchen centers the main level with an island that supports meal prep, casual seating, and everyday use. A pantry, powder room, drop zone, and rear stoop add smart function near the back of the home while keeping the main living space open. Upstairs, the primary bedroom includes its own bath and closet space, with Bedrooms 2 and 3 positioned near a shared full bath. The upstairs laundry adds convenience, and the upper porch gives the second level a distinct outdoor feature. The garage gives this townhome a practical advantage, offering covered parking and added storage potential. With 3 bedrooms, 2.5 bathrooms, a kitchen island, pantry, drop zone, upstairs laundry, front porch, upper porch, and garage, Townhome 583 delivers efficient new construction living across two thoughtfully arranged levels.

Floor Plans

Floor Plan 1
Floor Plan 2
× Floor Plan Fullscreen

*All marketing materials including but not limited to individual lot renderings, community interactive maps, marketing floor plans and virtual tours are graphic illustrations for marketing and presentation purposes only. Actual floor plans, homesites, and materials may vary.

Welcome Home

Envisioning what your future home will look like should be simple! This video showcases a Holland Homes floor plan that is available to be built. Through the use of video and virtual models, we provide the resources to not just dream of your next home, but make your dreams a reality. *The covered back porch shown in some of our home renderings is a structural option and is not always included in the base price of the home. Please speak to one of our sales team members for details.
$

10%

0.5%

6.67%

$1421

Monthly Payment

Principal & Interest $1421

Monthly Taxes $1421

Leave a Reply