6.67%
Skip to main content
$500,728

The Preserve Lot 581 — Townhome 581 with Garage

Estimated payment: Mortgage Calculator
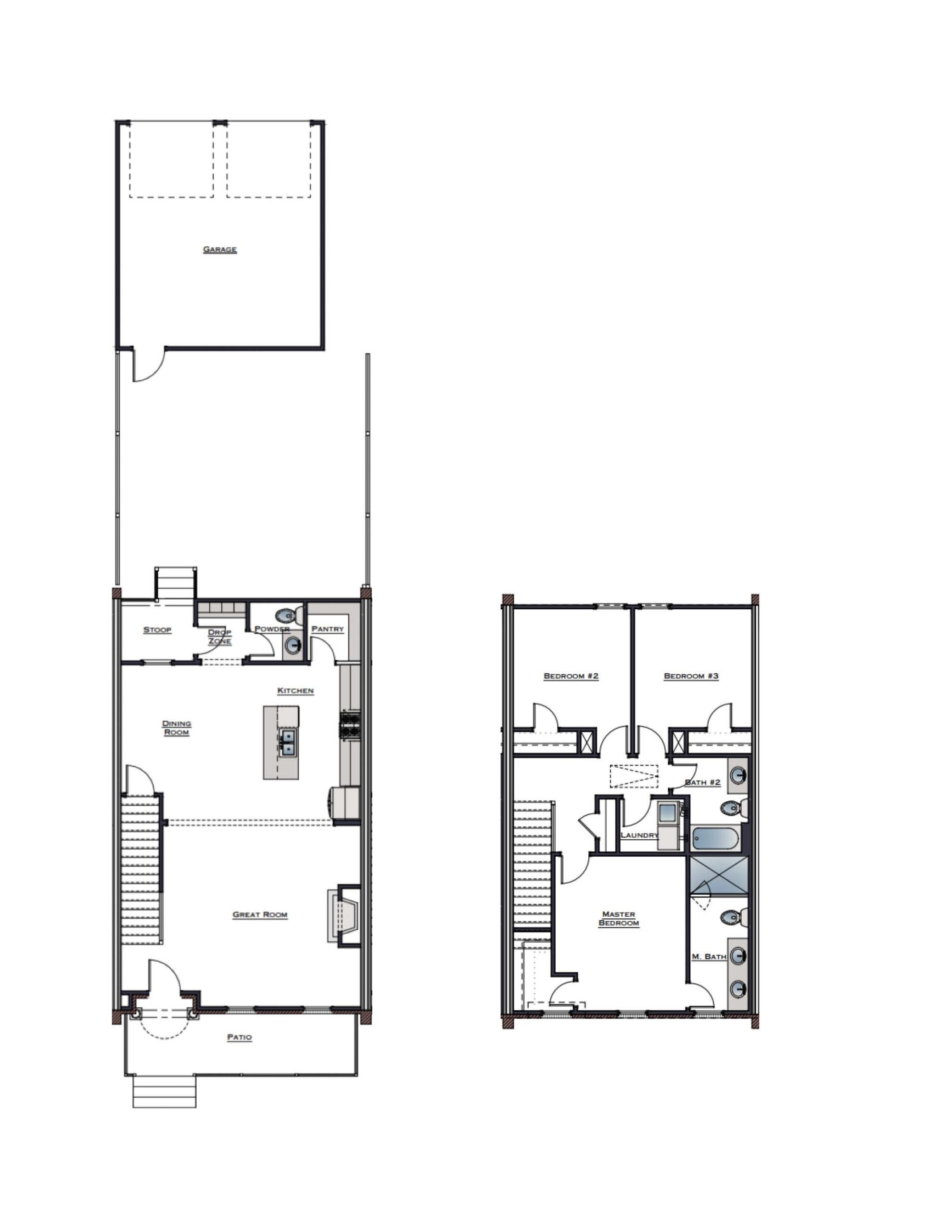
Step inside Townhome 581 with Garage from the front entry into a great room that gives the main level an open, connected start. The living area flows naturally toward the dining room and kitchen, keeping the everyday spaces easy to use without feeling overcomplicated. The kitchen features a center island that adds prep space, storage, and a natural connection to the dining area. A pantry, powder room, drop zone, and rear stoop add practical function to the main level while keeping the main living space open. Upstairs, the primary bedroom is positioned with its own bath and closet space, while Bedrooms 2 and 3 share a full bath nearby. The upstairs laundry keeps daily routines close to the bedrooms, adding convenience where it is most useful. The garage is a key advantage for this townhome plan, adding covered parking and extra storage potential. With 3 bedrooms, 2.5 bathrooms, a kitchen island, pantry, drop zone, upstairs laundry, front porch, rear stoop, and garage, Townhome 581 offers efficient new construction living across two well-planned levels.

Floor Plans

Floor Plan 1
Floor Plan 2
× Floor Plan Fullscreen

*All marketing materials including but not limited to individual lot renderings, community interactive maps, marketing floor plans and virtual tours are graphic illustrations for marketing and presentation purposes only. Actual floor plans, homesites, and materials may vary.

Welcome Home

Envisioning what your future home will look like should be simple! This video showcases a Holland Homes floor plan that is available to be built. Through the use of video and virtual models, we provide the resources to not just dream of your next home, but make your dreams a reality. *The covered back porch shown in some of our home renderings is a structural option and is not always included in the base price of the home. Please speak to one of our sales team members for details.
$

10%

0.5%

6.67%

$1421

Monthly Payment

Principal & Interest $1421

Monthly Taxes $1421

Leave a Reply