6.52%
Skip to main content
$511,674

The Preserve Lot 575 — Townhome 575 with Garage

Estimated payment: Mortgage Calculator
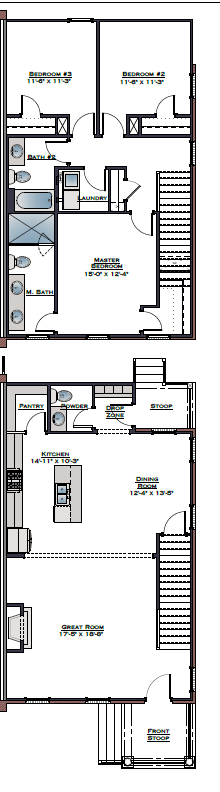
Welcome to Townhome 575 with Garage! This townhome enters from the front stoop into a great room that gives the main level an open, easy start. The layout moves naturally from the front living space toward the dining room and kitchen, keeping the main areas connected and simple to navigate. The kitchen features a center island that adds prep space, storage, and an easy connection to the dining area. A pantry, powder room, drop zone, and rear stoop add practical function to the main level without crowding the living space. Upstairs, the primary bedroom is positioned at one end of the hall with its own bath and closet space. Bedrooms 2 and 3 sit nearby with access to a full bath, while the upstairs laundry keeps daily routines close to the bedrooms. With 3 bedrooms, 2.5 bathrooms, a connected main-level living layout, kitchen island, pantry, drop zone, upstairs laundry, and garage, Townhome 575 offers new construction townhome living with efficient space across two levels. Schedule a tour to walk the layout and see how this townhome lives in person.

Floor Plans

Floor Plan 1
Floor Plan 2
× Floor Plan Fullscreen

*All marketing materials including but not limited to individual lot renderings, community interactive maps, marketing floor plans and virtual tours are graphic illustrations for marketing and presentation purposes only. Actual floor plans, homesites, and materials may vary.

Welcome Home

Envisioning what your future home will look like should be simple! This video showcases a Holland Homes floor plan that is available to be built. Through the use of video and virtual models, we provide the resources to not just dream of your next home, but make your dreams a reality. *The covered back porch shown in some of our home renderings is a structural option and is not always included in the base price of the home. Please speak to one of our sales team members for details.
$

10%

0.5%

6.52%

$1421

Monthly Payment

Principal & Interest $1421

Monthly Taxes $1421

Leave a Reply