6.67%
Skip to main content
$587,703

Auburn Farms Lot 57 — Holly A

Estimated payment: Mortgage Calculator
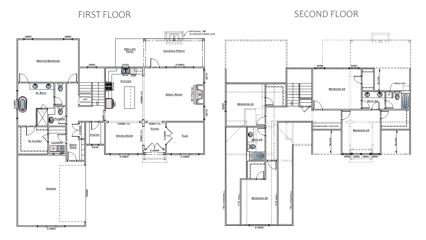
Are you looking for the perfect home to grow with capabilities of effortless entertaining? Look no further. The Holly, 5 bedroom, 3 and and a half bathroom, 3,216 square foot home offers a thoughtfully designed two-story layout that blends everyday functionality with elegant living spaces. The first floor features a private primary suite tucked away for a quiet retreat, complete with a spacious ensuite bath, walk-in closet, and convenient access to the laundry room and drop zone. The heart of the home showcases an open-concept kitchen, dining, and great room, anchored by a large island and walk-in pantry—ideal for hosting and daily living alike. A welcoming foyer leads to a flexible front flex room, perfect for a home office, playroom, or formal sitting area. Enjoy seamless indoor-outdoor living with a covered back porch, creating the perfect space for relaxing or entertaining year-round. Upstairs, you’ll find four generously sized bedrooms, thoughtfully arranged for privacy and comfort, along with two full bathrooms and a centrally located homework/tech center—perfect for studying, remote work, or creative projects. The layout provides both shared and private spaces, giving everyone room to spread out while staying connected. With smart flow, ample storage, and versatile living areas, the Holly A is designed to grow with your lifestyle—offering comfort, style, and functionality in every square foot.

Floor Plans

Floor Plan 1
Floor Plan 2
× Floor Plan Fullscreen

*All marketing materials including but not limited to individual lot renderings, community interactive maps, marketing floor plans and virtual tours are graphic illustrations for marketing and presentation purposes only. Actual floor plans, homesites, and materials may vary.

Welcome Home

Envisioning what your future home will look like should be simple! This video showcases a Holland Homes floor plan that is available to be built. Through the use of video and virtual models, we provide the resources to not just dream of your next home, but make your dreams a reality. *The covered back porch shown in some of our home renderings is a structural option and is not always included in the base price of the home. Please speak to one of our sales team members for details.
$

10%

0.5%

6.67%

$1421

Monthly Payment

Principal & Interest $1421

Monthly Taxes $1421

Leave a Reply