6.24%
Skip to main content
$259,859

Firefly Lot 33 — Firefly Townhome Interior Unit B

Estimated payment: Mortgage Calculator
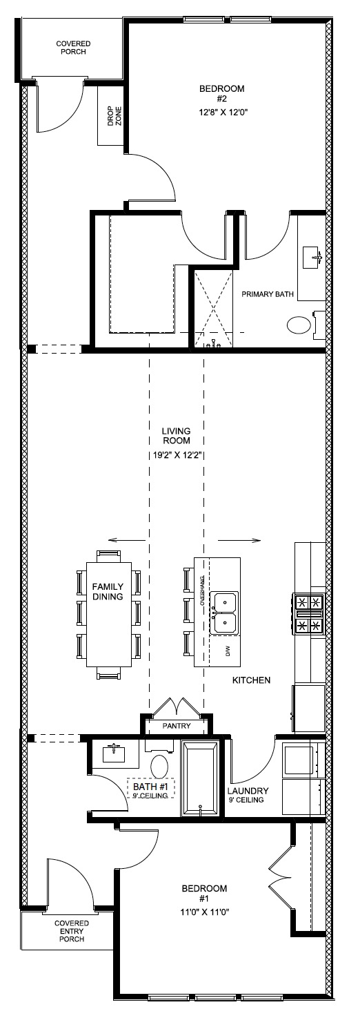
Welcome to the Townhomes! Townhome B features two bedrooms, two bathrooms, and spans 1,184 square feet. As you make your way into the home, you enter into the foyer that leads to the front bedroom and hall bathroom. The foyer leads into the open concept dining room and kitchen that features a large center island. Tucked off the kitchen is the laundry room. The kitchen and dining room flows into the open concept living room that showcases vaulted ceilings. The back of the home leads to the primary suite, which features a spacious bedroom, en-suite bathroom and a large walk-in closet. The back of the home features a drop zone and a covered porch.

Floor Plans

Floor Plan 1
× Floor Plan Fullscreen

*All marketing materials including but not limited to individual lot renderings, community interactive maps, marketing floor plans and virtual tours are graphic illustrations for marketing and presentation purposes only. Actual floor plans, homesites, and materials may vary.

Welcome Home

Envisioning what your future home will look like should be simple! This video showcases a Holland Homes floor plan that is available to be built. Through the use of video and virtual models, we provide the resources to not just dream of your next home, but make your dreams a reality. *The covered back porch shown in some of our home renderings is a structural option and is not always included in the base price of the home. Please speak to one of our sales team members for details.
$

10%

0.5%

6.24%

$1421

Monthly Payment

Principal & Interest $1421

Monthly Taxes $1421

Leave a Reply