Skip to main content

Azalea

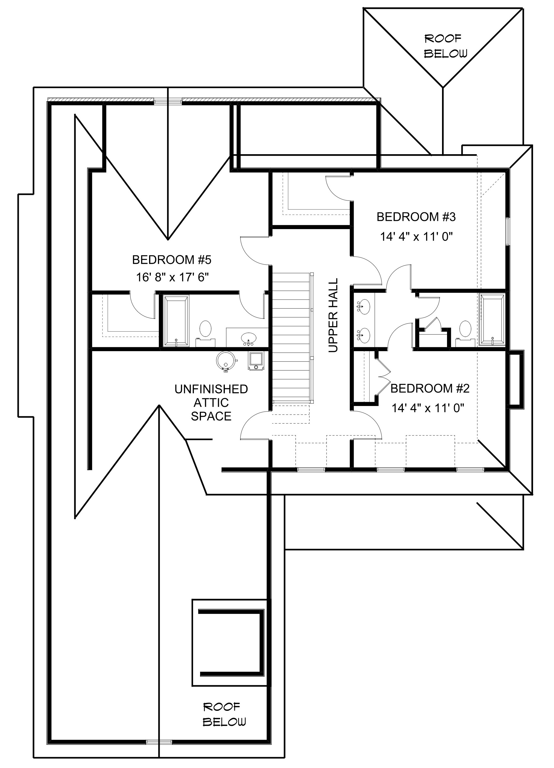
The cottage-style architecture & covered front porch give this home great curb appeal. The Great Room is spacious with 10 foot ceilings, hardwood floors & a ventless gas log fireplace. It opens into the Dining Room & Gourmet Kitchen, both with hardwoods. The Kitchen features a large center island with bar seating and opens onto a covered porch. The master suite has two large walk-in closets & an en suite with a linen closet, dual sink vanity, soaking tub & glass-enclosed shower. Bedroom 4 on main level with Bathroom access could be used as a guest suite or study. The upper level features 3 additional bedrooms, 2 with walk-in closets, and 2 baths. Beds 2 and 3 share a Jack-n-Jill Bath & Bed 5 has private bath.
*Elevations may vary per the community architectural plans. Options, room sizes, and porch configurations may vary per plan and/or community and are subject to change. Please contact our Sales Team for more details.

Floor Plans

Floor Plan 1
Floor Plan 2
× Floor Plan Fullscreen

Welcome Home

Envisioning what your future home will look like should be simple! This video showcases a Holland Homes floor plan that is available to be built. Through the use of video and virtual models, we provide the resources to not just dream of your next home, but make your dreams a reality.

Virtual Tour

This interactive tour allows you to walk through each Holland Homes floor plan without having to leave the comfort of your own home! Simply click on the arrow that leads to the room you would like to view. You can also visit different areas of the home by selecting a desired location on the floor plan.
  • Use the arrows to move from room to room.
  • Use the cursor to look around the room.
  • Use the thumbnails to view different areas of the house.

Leave a Reply