6.65%
Skip to main content

Chelsea Ridge North Lot 45 — Chase C

$425,098

Chelsea Ridge North Lot 45 — Chase C

Estimated payment: Mortgage Calculator
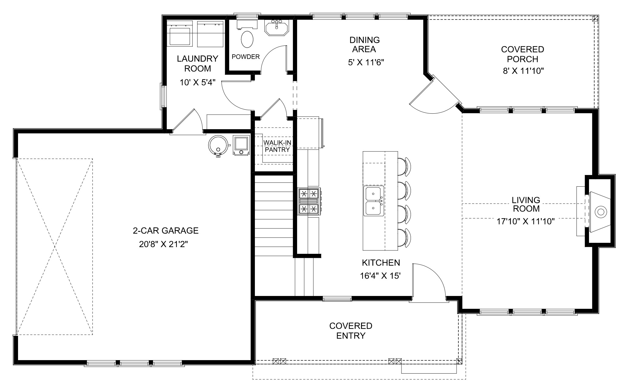
The Chase is a two-story, three bedroom, two and a half bathroom home, which spans across 1,823 sqft. When entering the home through the two car garage, you enter into the mudroom, which is the perfect drop zone for backpacks, shoes, and coats. Off the mudroom, you will also find a hallway that leads to laundry room, powder room, and walk in pantry. Through this hallway, you will enter into the open concept kitchen, dining, and living area, with plenty of space to host, entertain, or hang out with family. Upstairs, you will find the owner’s retreat and bedrooms one and two. Off the back of the home, you will find a covered porch designed perfectly for family grill-outs.

Floor Plans

Floor Plan 1
Floor Plan 2
× Floor Plan Fullscreen

*All marketing materials including but not limited to individual lot renderings, community interactive maps, marketing floor plans and virtual tours are graphic illustrations for marketing and presentation purposes only. Actual floor plans, homesites, and materials may vary.

$

10%

0.5%

6.65%

$1421

Monthly Payment

Principal & Interest $1421

Monthly Taxes $1421

Leave a Reply