Skip to main content
$690,225

Preserve Lot 536 – Poydras A

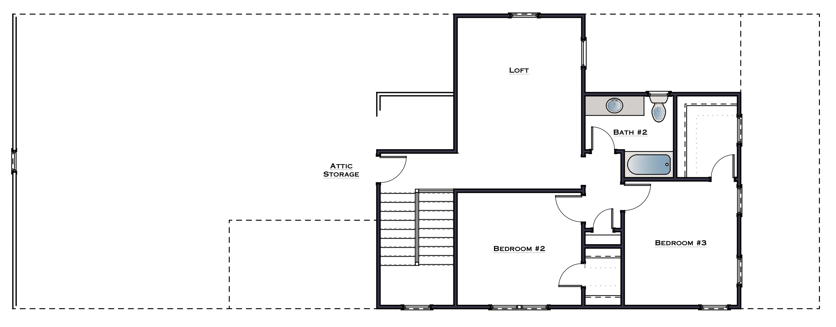
Welcome to The Poydras Plan! The Poydras features three bedrooms, two and a half bathrooms and spans across 2,399 square feet. When you enter into the home, you make your way into the foyer that leads to the great room. Opposite of the great room is the powder bathroom. As you make your way through the home, you will enter into the open concept dining room and kitchen area. The primary suite is located on the back of the home and features a spacious bedroom, en-suite bathroom with a walk-in tile shower and double vanities, and a walk-in closet with access to the laundry room. The back of the home has a covered porch and two car garage. The second level of the home features two additional bedrooms, a full bathroom and loft area.
*Elevations may vary per the community architectural plans. Options, room sizes, and porch configurations may vary per plan and/or community and are subject to change. Please contact our Sales Team for more details.

Floor Plans

Floor Plan 1
Floor Plan 2
× Floor Plan Fullscreen

Leave a Reply